Продам 1кімн 46м2 з дизайнерським ремонтом у ЖК White Lines, Голосіївський, метро Голосеевская, поруч парк і озеро
ID: 11095
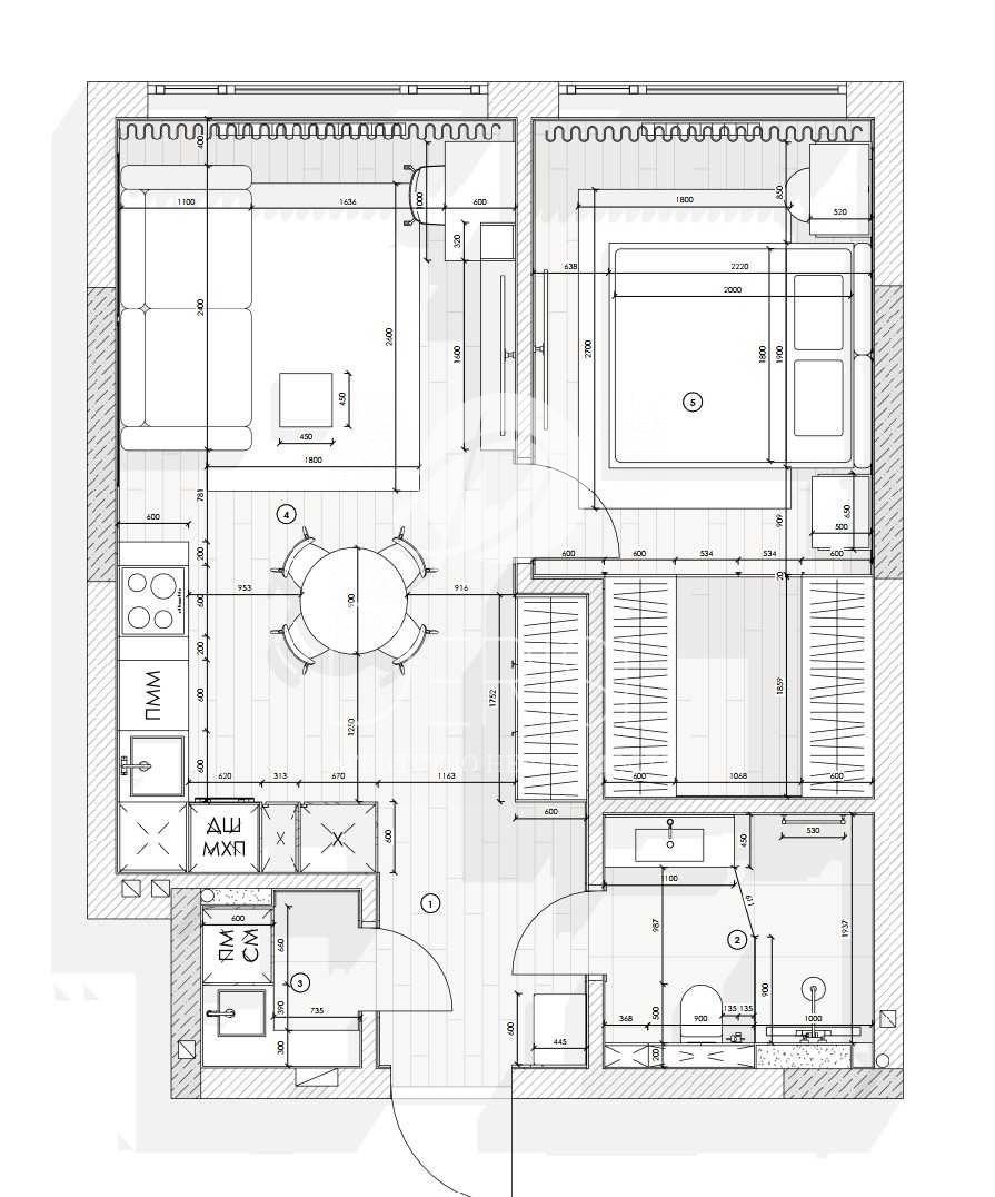
Характеристика об'єкта
- Вулиця: Голосіївський
- Поверх: 8-й
- Кіл. поверхів: 23
- Загальна площа: 46 м2
- Площа кухні: 20 м2
#11095 Актуально!
Продаж 1к квартири з окремою спальнею в ЖК White Lines, Голосіївський проспект 78/2. Будинок 103. Голосіївський район, поруч з метро Голосеевская.
Дизайнерський ремонт у стилі мінімалізм, закінчуємо у квітні, на фото - візуалізації. Буде укомплектована меблями та сучасною технікою.
Основні характеристики:
- площа 46 м2;
- поверх 7, вікна на стилобат;
- кухня вітальня;
- санвузол з душовою кабіною;
- кладова-постирочна.
Вже працює підземний паркінг. Є резервне живлення.
Перегляди за домовленістю. Ключі на руках. На 1 квітня встановлюють меблі і побутову техніку.
Житловий комплекс бізнес класу с закритою територією та власною інфраструктурою. У комплексі у 2026 здадуть в екслуатацію приміщення під торговий центр, спортивний комплекс, супермаркет, магазини, ресторани, кавярні, бізнес центр та ін. Свій дитячий садок також буде у стилобатній частині комплексу, власний парк розміром 1 гектар з дитячим та спортивним майданчиками, місцями для відпочинку та прогулянок на свіжому повітры. Через дорогу - озеро і Голосіївський парк.
Телефонуйте
Продаж 1к квартири з окремою спальнею в ЖК White Lines, Голосіївський проспект 78/2. Будинок 103. Голосіївський район, поруч з метро Голосеевская.
Дизайнерський ремонт у стилі мінімалізм, закінчуємо у квітні, на фото - візуалізації. Буде укомплектована меблями та сучасною технікою.
Основні характеристики:
- площа 46 м2;
- поверх 7, вікна на стилобат;
- кухня вітальня;
- санвузол з душовою кабіною;
- кладова-постирочна.
Вже працює підземний паркінг. Є резервне живлення.
Перегляди за домовленістю. Ключі на руках. На 1 квітня встановлюють меблі і побутову техніку.
Житловий комплекс бізнес класу с закритою територією та власною інфраструктурою. У комплексі у 2026 здадуть в екслуатацію приміщення під торговий центр, спортивний комплекс, супермаркет, магазини, ресторани, кавярні, бізнес центр та ін. Свій дитячий садок також буде у стилобатній частині комплексу, власний парк розміром 1 гектар з дитячим та спортивним майданчиками, місцями для відпочинку та прогулянок на свіжому повітры. Через дорогу - озеро і Голосіївський парк.
Телефонуйте
