2К-КПІ Шулявка Продаж Центр
ID: 11024
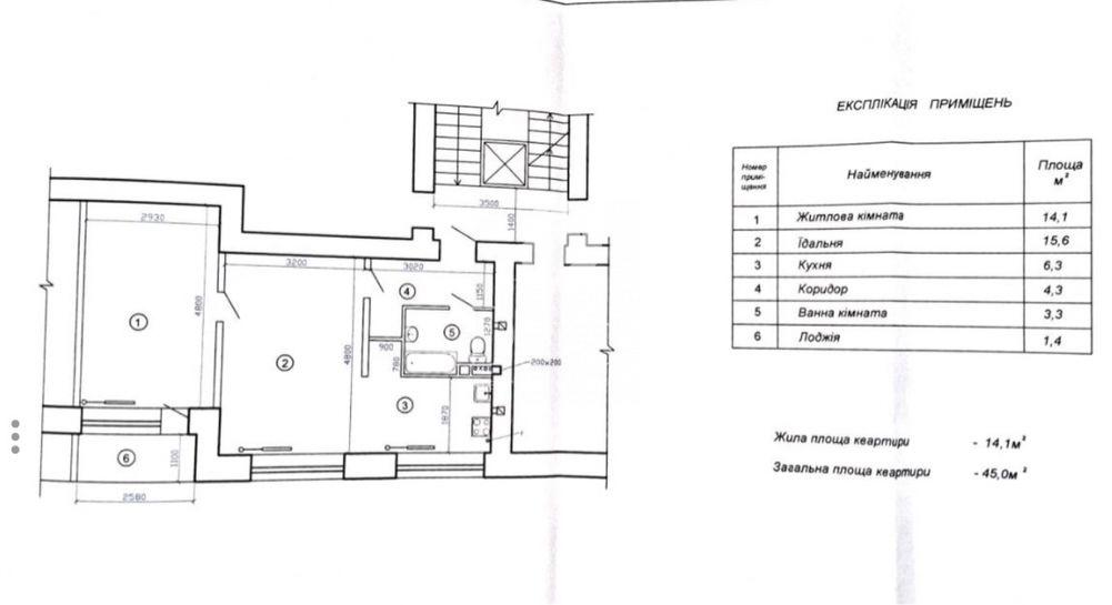
Характеристика об'єкта
- Вулиця: Берестейський
- Поверх: 3-й
- Кіл. поверхів: 9
- Загальна площа: 45 м2
- Житлова площа: 32 м2
- Площа кухні: 7 м2
#11024 Актуально
Продаж 2-кімнатної квартири
пр-т Перемоги, 20 (навпроти метро «Політехнічний інститут»)
Основна інформація:
Кількість кімнат: 2 (суміжні)
Площа: 46 / 32 / 7 м²
Поверх: 3 з 9
Будинок: цегляний
Ціна: 78 000 у.о.
Стан:
Сучасний ремонт
Перепланування узаконено (кухня-студія)
Нові труби та електропроводка
Можна одразу заїхати і жити
Оснащення:
Продається з усіма меблями та технікою
Вбудована кухня та меблі
Побутова техніка:
бойлер
кондиціонер
пральна машина
Вікна та балкон:
Металопластикові вікна
Лоджія засклена та утеплена
Вікна виходять на проспект
Будинок:
Чисте парадне (код)
Новий ліфт
Броньовані двері
Інфраструктура:
ТРЦ Smart Plaza Polytech
Магазини, супермаркети, банки
Парк та зони відпочинку
Локація:
Метро «КПІ» — 2 хвилини пішки
Продаж 2-кімнатної квартири
пр-т Перемоги, 20 (навпроти метро «Політехнічний інститут»)
Основна інформація:
Кількість кімнат: 2 (суміжні)
Площа: 46 / 32 / 7 м²
Поверх: 3 з 9
Будинок: цегляний
Ціна: 78 000 у.о.
Стан:
Сучасний ремонт
Перепланування узаконено (кухня-студія)
Нові труби та електропроводка
Можна одразу заїхати і жити
Оснащення:
Продається з усіма меблями та технікою
Вбудована кухня та меблі
Побутова техніка:
бойлер
кондиціонер
пральна машина
Вікна та балкон:
Металопластикові вікна
Лоджія засклена та утеплена
Вікна виходять на проспект
Будинок:
Чисте парадне (код)
Новий ліфт
Броньовані двері
Інфраструктура:
ТРЦ Smart Plaza Polytech
Магазини, супермаркети, банки
Парк та зони відпочинку
Локація:
Метро «КПІ» — 2 хвилини пішки
