2К Продаж / Квартира / пр-т Бажана Миколи, Осокорки, Київ
ID: 11002
Характеристика об'єкта
- Вулиця: Бажана Миколи
- Поверх: 5-й
- Кіл. поверхів: 9
- Загальна площа: 50.3 м2
- Площа кухні: 7.9 м2
#11002 Актуально
Продаж світлої 2-кімнатної квартири з роздільним плануванням
Вид об’єкта: Вторинний ринок
Поверх: 5
Поверховість: 9
Загальна площа: 50.3 м²
Площа кухні: 7.9 м²
Кількість кімнат: 2 кімнати
Планування: Роздільна
Санвузол: Роздільний
Опалення: Централізоване
Опис
Світла та тепла 2-кімнатна квартира з комфортним плануванням у зручному районі. Квартира доглянута, у житловому стані та підходить як для проживання, так і для інвестиції.
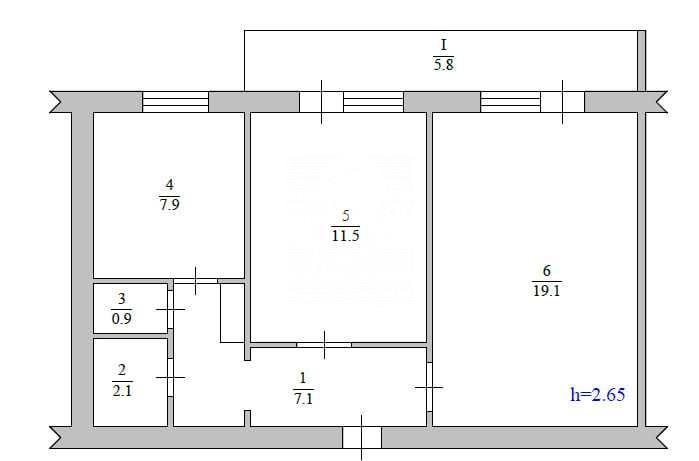
Планування
Коридор 7.1 м²
Кухня 7.9 м²
Ванна кімната 2.1 м²
Санвузол 0.9 м²
Кімната 11.5 м²
Кімната 19.1 м²
Балкон 1.7 м²
Особливості
Квартира тепла взимку
Встановлені лічильники на воду, газ та електроенергію (день/ніч)
Комплектація та комфорт
Меблі та побутова техніка
Балкон
Газ у будинку
Ліфт
Чистий та доглянутий під’їзд
Інфраструктура
Поруч супермаркети, магазини, кафе
Школи та дитячі садки
Парк та зелені зони
Зручна транспортна розв’язка, метро у пішій доступності
Телефонуйте для перегляду
Продаж світлої 2-кімнатної квартири з роздільним плануванням
Вид об’єкта: Вторинний ринок
Поверх: 5
Поверховість: 9
Загальна площа: 50.3 м²
Площа кухні: 7.9 м²
Кількість кімнат: 2 кімнати
Планування: Роздільна
Санвузол: Роздільний
Опалення: Централізоване
Опис
Світла та тепла 2-кімнатна квартира з комфортним плануванням у зручному районі. Квартира доглянута, у житловому стані та підходить як для проживання, так і для інвестиції.
Планування
Коридор 7.1 м²
Кухня 7.9 м²
Ванна кімната 2.1 м²
Санвузол 0.9 м²
Кімната 11.5 м²
Кімната 19.1 м²
Балкон 1.7 м²
Особливості
Квартира тепла взимку
Встановлені лічильники на воду, газ та електроенергію (день/ніч)
Комплектація та комфорт
Меблі та побутова техніка
Балкон
Газ у будинку
Ліфт
Чистий та доглянутий під’їзд
Інфраструктура
Поруч супермаркети, магазини, кафе
Школи та дитячі садки
Парк та зелені зони
Зручна транспортна розв’язка, метро у пішій доступності
Телефонуйте для перегляду
