2К-Продаж квартири Осококрки Дарницький р-н
ID: 10863
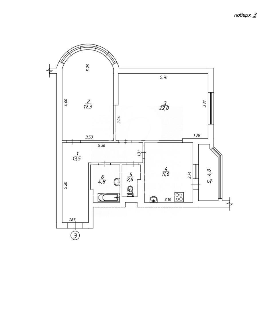
Характеристика об'єкта
- Вулиця: Єлизавети Чавдар
- Поверх: 3-й
- Кіл. поверхів: 23
- Загальна площа: 76 м2
- Житлова площа: 42 м2
- Площа кухні: 12 м2
#10863 Актуально
Двокімнатна квартира, 75,8 м на Чавдар, 3 — це:
• не змінювати район, де вже є все: улюблена кава, магазини, метро і життя в пішому доступі
• отримати більше простору — великі кімнати, більше світла і повітря, той самий комфорт, якого не вистачає в однокімнатній
• зробити ремонт під себе — не терпіти чужі кольори, рожеві шпалери і застарілі багети
• подбати про безпеку для себе і дітей — 3-й поверх і спокій навіть без ліфта
• жити комфортно в будь-яких умовах — будинок з ОСББ, резервним живленням та інверторами на ліфти
• купити за правильною ціною — не переплачувати за чужий ремонт і вкладати в те, що дійсно ваше
вул. Чавдар, 3
3 поверх
75,8 м
Монолітно-каркасний будинок з великими відстанями між будинками — без відчуття «вікна в вікна».
Планування:
– 2 окремі кімнати
– простора кухня з лоджією
– вид на приватний сектор
– 2 санвузли
Квартира повністю під ремонт.
Локація:
– метро Осокорки — кілька хвилин пішки
– школи, садочки, магазини, аптеки
– зони для прогулянок
Це варіант, який одночасно дає комфорт для життя і дозволяє не переплачувати на вході.
Двокімнатна квартира, 75,8 м на Чавдар, 3 — це:
• не змінювати район, де вже є все: улюблена кава, магазини, метро і життя в пішому доступі
• отримати більше простору — великі кімнати, більше світла і повітря, той самий комфорт, якого не вистачає в однокімнатній
• зробити ремонт під себе — не терпіти чужі кольори, рожеві шпалери і застарілі багети
• подбати про безпеку для себе і дітей — 3-й поверх і спокій навіть без ліфта
• жити комфортно в будь-яких умовах — будинок з ОСББ, резервним живленням та інверторами на ліфти
• купити за правильною ціною — не переплачувати за чужий ремонт і вкладати в те, що дійсно ваше
вул. Чавдар, 3
3 поверх
75,8 м
Монолітно-каркасний будинок з великими відстанями між будинками — без відчуття «вікна в вікна».
Планування:
– 2 окремі кімнати
– простора кухня з лоджією
– вид на приватний сектор
– 2 санвузли
Квартира повністю під ремонт.
Локація:
– метро Осокорки — кілька хвилин пішки
– школи, садочки, магазини, аптеки
– зони для прогулянок
Це варіант, який одночасно дає комфорт для життя і дозволяє не переплачувати на вході.
