1 К ЖК Новомостицький Проспект Правди Подільський Київ Ремонт
ID: 10557
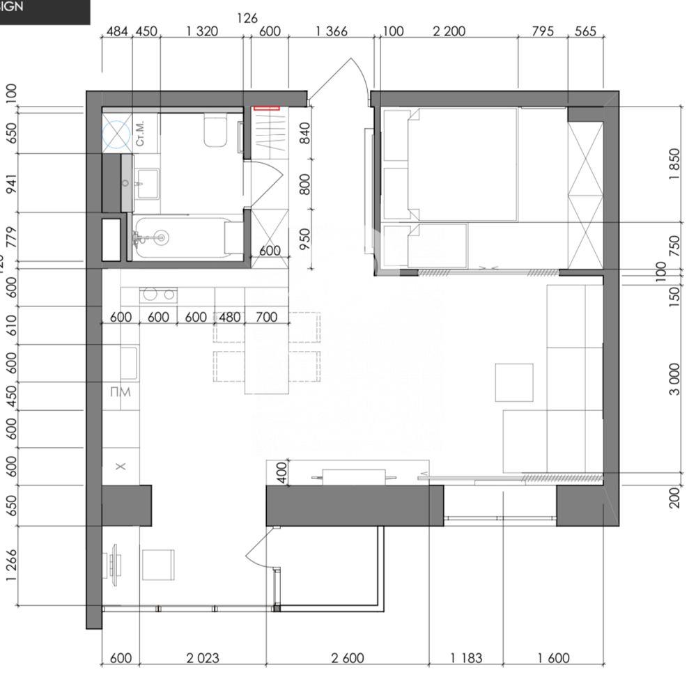
Характеристика об'єкта
- Вулиця: Новомостицька
- Поверх: 19-й
- Кіл. поверхів: 20
- Загальна площа: 52 м2
- Площа кухні: 20 м2
#10557 Актуально
Продаж видової 1-кімнатної квартири | вул. Новомостицька, 15
Пропонується світла та простора квартира у сучасному будинку комфорт-класу на 19 поверсі. Квартира має вдале планування з квадратною кухнею та лоджією з панорамним склінням. Загальна площа дозволяє комфортно організувати простір, а за бажанням можливе перепланування у двокімнатну.
У квартирі виконано якісний ремонт, встановлені меблі та техніка, які залишаються новому власнику. Будинок збудований із червоної цегли з товстими зовнішніми стінами та додатковим утепленням, що забезпечує хорошу тепло- та шумоізоляцію. Квартира тепла, економна в утриманні, встановлено індивідуальний лічильник тепла.
Будинок повністю заселений, має закриту територію з охороною та відеоспостереженням, підземний паркінг, ліфти з доступом за картками та власну керуючу компанію. На першому поверсі розташовані магазини, кав’ярня та сервісні заклади.
Зручна локація на вул. Новомостицька, поруч медичні заклади, парк «Березовий гай», транспортна розв’язка. У перспективі відкриття станцій метро Мостицька та Проспект Правди (близько 900 м).
Квартира у власності понад 3 роки, один власник, без обтяжень. Підходить як для проживання, так і для інвестиції.
Телефонуйте
Продаж видової 1-кімнатної квартири | вул. Новомостицька, 15
Пропонується світла та простора квартира у сучасному будинку комфорт-класу на 19 поверсі. Квартира має вдале планування з квадратною кухнею та лоджією з панорамним склінням. Загальна площа дозволяє комфортно організувати простір, а за бажанням можливе перепланування у двокімнатну.
У квартирі виконано якісний ремонт, встановлені меблі та техніка, які залишаються новому власнику. Будинок збудований із червоної цегли з товстими зовнішніми стінами та додатковим утепленням, що забезпечує хорошу тепло- та шумоізоляцію. Квартира тепла, економна в утриманні, встановлено індивідуальний лічильник тепла.
Будинок повністю заселений, має закриту територію з охороною та відеоспостереженням, підземний паркінг, ліфти з доступом за картками та власну керуючу компанію. На першому поверсі розташовані магазини, кав’ярня та сервісні заклади.
Зручна локація на вул. Новомостицька, поруч медичні заклади, парк «Березовий гай», транспортна розв’язка. У перспективі відкриття станцій метро Мостицька та Проспект Правди (близько 900 м).
Квартира у власності понад 3 роки, один власник, без обтяжень. Підходить як для проживання, так і для інвестиції.
Телефонуйте
